Duplex
€ 1.475

Ninoofsesteenweg 664 B104, 1700 Dilbeek
    • delen

Omschrijving Ref.: 7602392

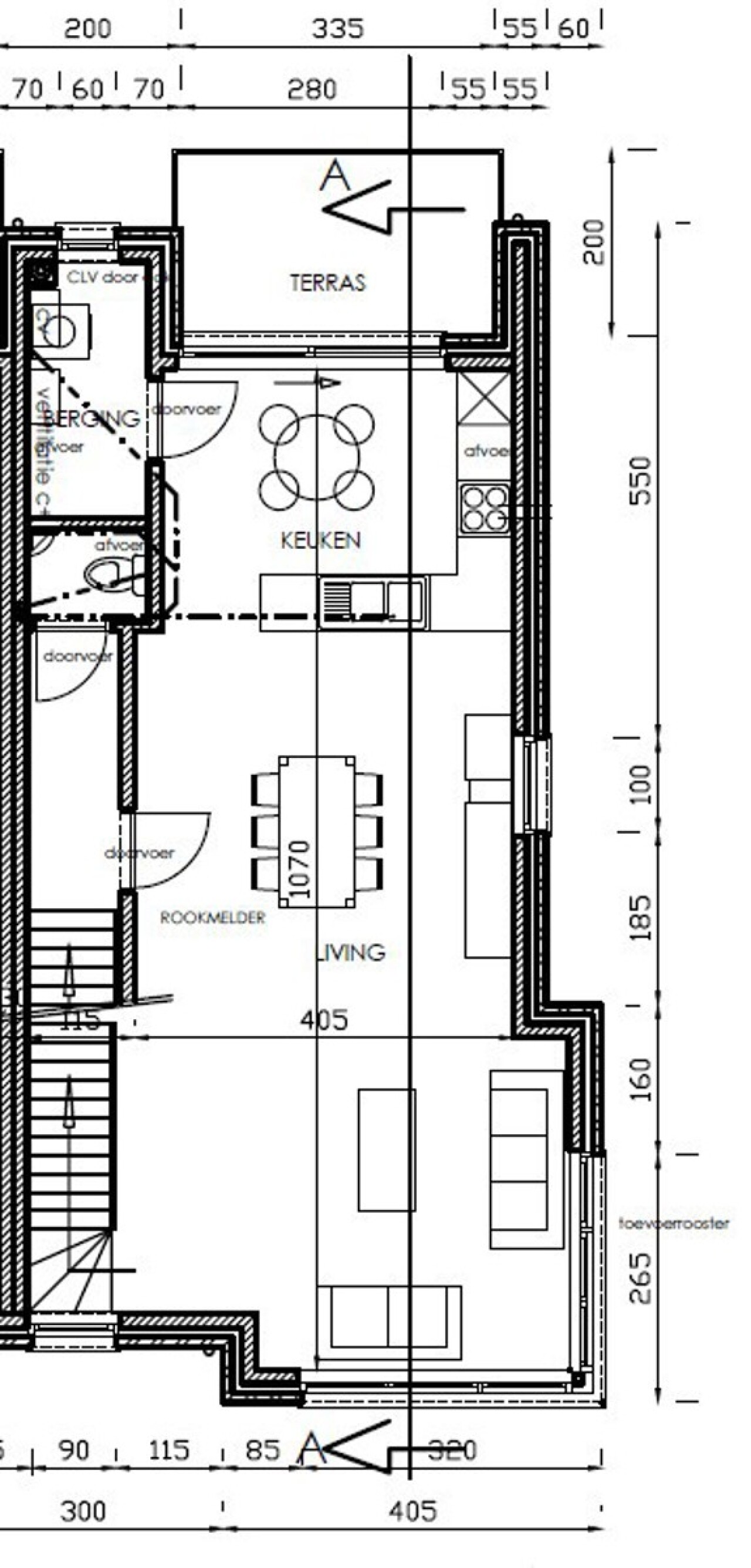
Duplex met 2 ruime slaapkamers, terras en garage


Om een afspraak in te plannen, gelieve uw aanvraag te mailen naar info@allur.be. Residentie Allegria 1: duplex gelegen op de eerste en tweede verdieping van de residentie met afzonderlijke inkom. Het appartement wordt gemeubeld verhuurd. Voor indeling: zie bijgevoegde plannen: traphal met hal en afzonderlijk toilet, leefkamer met open keuken en toegang tot aangenaam terras, berging / wasplaats. Traphal gaande naar verdieping 2 met nachthal die toegang geeft tot de 2 ruime slaapkamers met inbouwkasten en badkamer. Het appartement beschikt nog over een ruime bergzolder, bereikbaar via uittrekbare trap. Op verdieping -1 bevindt zich de gesloten garage. Er is tevens parkeerplaats voor het gebouw. Onmiddellijk beschikbaar, individuele tellers voor nutsvoorzieningen. Gelegen op de Ninoofsesteenweg, met goede verbinding naar buurtwinkels, openbaar vervoer en andere faciliteiten.


Uw contact

Cornelis Erik 02 486 26 26
contact

Details van het pand

Financieel

Prijs
€ 1.475,00/maand
Beschikbaarheid
Onmiddellijk

Gebouw

Bewoonbare oppervlakte
115,00 m²
Aantal gevels
3
Bouwjaar
2016
Staat
Goede staat
Verdiep
1
Aantal verdiepingen
2

Terrein

Oriëntatie terras 1
Zuid

Parkeermogelijkheden

Garage
1

Indeling

Woonkamer
29,00 m²
Keuken
23,00 m², geïnstalleerd
Slaapkamer 1
19,00 m²
Slaapkamer 2
17,00 m²
Toiletten
2
Terras
9,00 m²
Wasplaats
Ja

Comfort

Gemeubeld
Ja

Energie

EPC
95 kWh/m²/jaar
EPC unieke code
23016-G-874.1/12/4/240/EP13566/A003/D01/SD001
Dubbele beglazing
Ja
Type verwarming
Gas cv

Technieken

Elektriciteit
Ja
Telefoonbekabeling
Ja
Kabeltelevisie
Ja
Gas
Ja
Water
Ja

Meer info over deze eigendom

Bedankt voor je bericht, we contacteren je zo spoedig mogelijk.
Er was een probleem bij het versturen van het formulier, gelieve opnieuw te proberen.
(*) Gelieve de verplichte velden in te vullen.