Gebouw voor gemengd gebruik
€ 575.000

Populierstraat 32, 1760 Roosdaal
    • delen

Omschrijving Ref.: 7668460

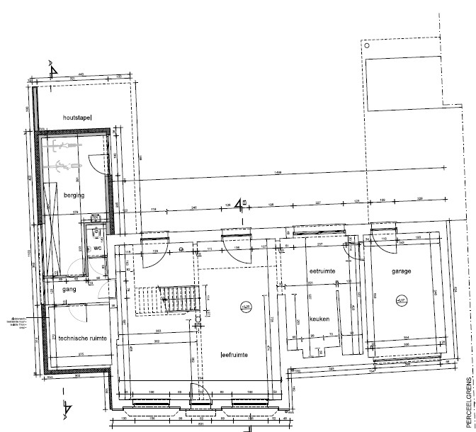
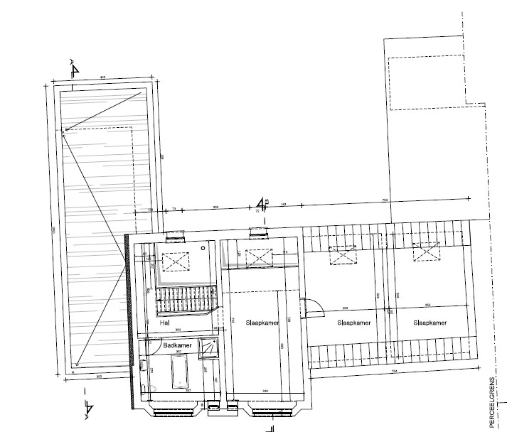
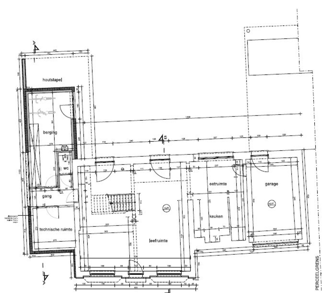
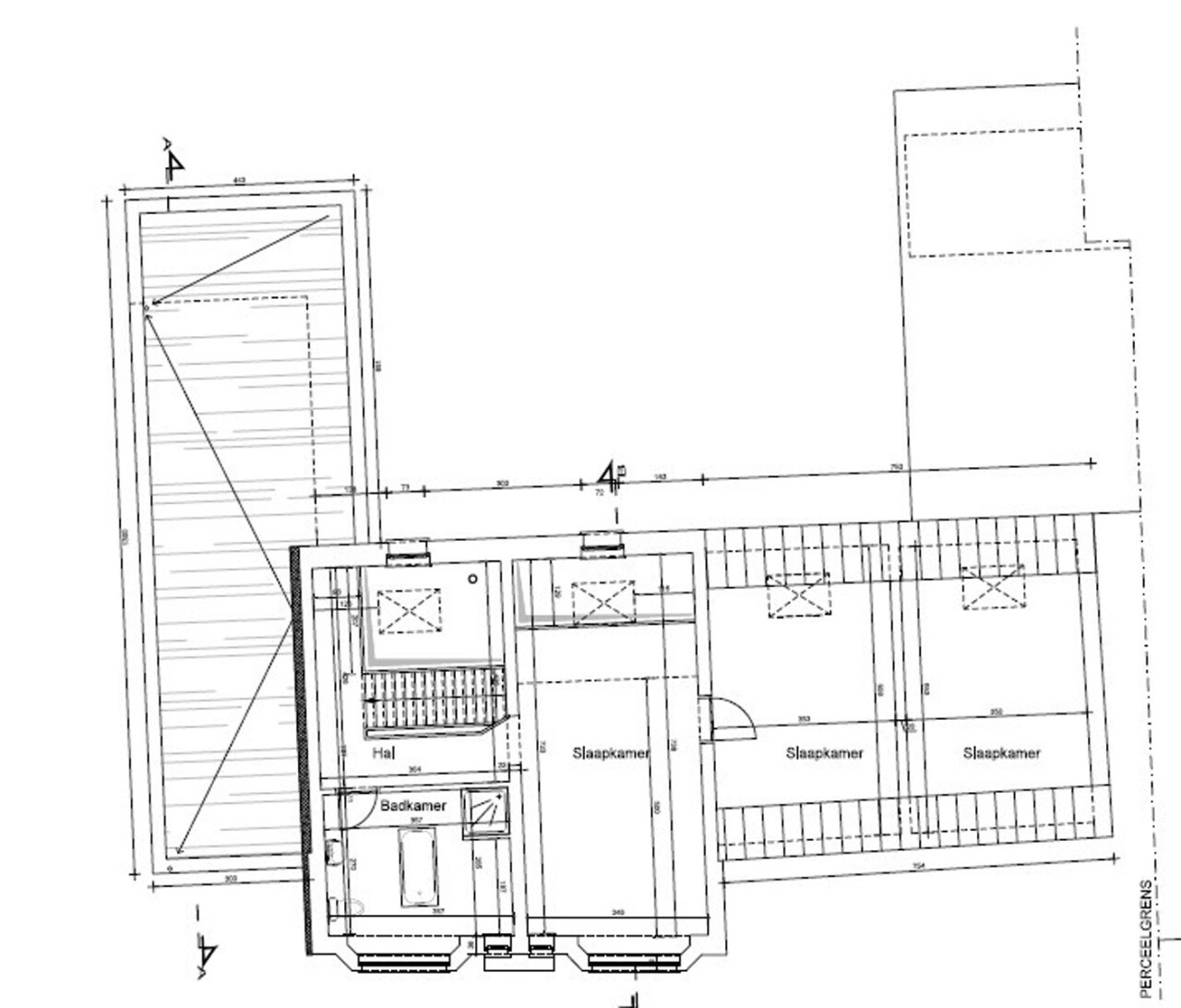
Woning met bijhorende zorgwoning / zelfstandige ruimte


Borchtlombeek: zeer ruime, gezellige en instapklare woning met diverse mogelijkheden op een ruim zuidelijk georiënteerd perceel. Bezoek de virtuele toer via www.allur. Plannen eveneens in bijlage voor de specifieke indeling van de woning. De woning is grondig gerenoveerd en bestaat momenteel uit een ééngezinswoning met bijhorende zorgwoning. Indeling gelijkvloers: gezellige leefkamer met naastgelegen keuken, garage. Een doorgang vanuit de leefkamer leidt naar het toilet, een badkamer en een ruimte die momenteel functioneert als zorgwoning. De tuin is toegankelijk via het hoofdgebouw en vanuit de zorgwoning. De zorgwoning heeft een aparte toegang zodat deze eveneens kan gebruikt worden als uitoefening van een kleine zelfstandige activiteit. Toegang mogelijks via de naastgelegen oprit. Het nachtgedeelte omvat een nachthal met toegang tot badkamer. Aansluitend zijn er achter elkaar gelegen ruimtes die dienst doen als dressing, bureau en slaapkamers. Mits het plaatsen van wanden kan de bestemming van deze ruimtes nog herschikt worden. De woning heeft een zeer mooie onderhoudsvriendelijke tuin, aansluitend op agrarisch gebied. Er is een gezellig overdekt terras met bijhorende berging. Naast de woning heeft u een oprit voor meerdere wagens en een bijhorende garage. Zeer ruime woning met veel potentieel.


Uw contact

Cornelis Erik 02 486 26 26
contact

Details van het pand

Financieel

Prijs
€ 575.000,00
Beschikbaarheid
Af te spreken met eigenaar
Kadastraal inkomen
€ 1.408,00

Gebouw

Bewoonbare oppervlakte
185,00 m²
Aantal gevels
4
Staat
Goede staat
Type dak
Zadeldak

Terrein

Grondoppervlakte
1.968,00 m²
Tuin
Ja
Oriëntatie terras 1
Zuid

Indeling

Woonkamer
54,00 m²
Keuken
21,00 m², geïnstalleerd
Slaapkamer 1
20,00 m²
Slaapkamer 2
20,00 m²
Toiletten
2
Wasplaats
Ja

Energie

EPC
250 kWh/m²/jaar
EPC unieke code
20260226-0003807916-RES-1
Ramen
Aluminium of pvc
Type verwarming
Gas cv
Verwarming
Vloerverwarming gedeeltelijk

Technieken

Elektriciteit
Ja
Telefoonbekabeling
Ja
Kabeltelevisie
Ja
Riolering
Ja
Gas
Ja
Water
Ja

Stedenbouw

Bestemming
Woongebied met landelijk karakter
Bouwvergunning
Ja
Verkavelingsvergunning
Nee
Voorkooprecht
Nee
Dagvaarding
Nee
G-score
D
P-score
D
Vonnissen
Nee

Meer info over deze eigendom

Bedankt voor je bericht, we contacteren je zo spoedig mogelijk.
Er was een probleem bij het versturen van het formulier, gelieve opnieuw te proberen.
(*) Gelieve de verplichte velden in te vullen.