Maison
€ 199.000

Jozef Degelaenstraat 16, 1501 Buizingen
    • partager

Description Ref.: 7572754

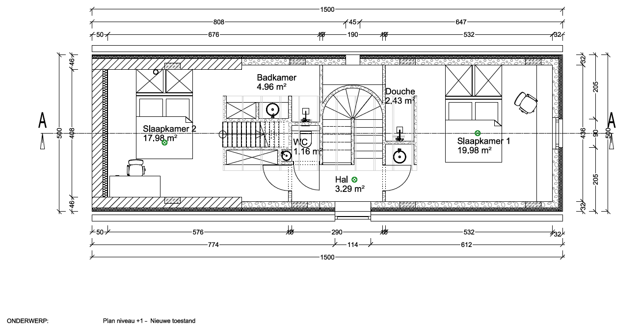
Maison à rénover et finir sur terrain de 935m²


Située dans une rue calme, à proximité du centre de Buizingen, vous trouverez cette maison en partie démolie, qui doit être encore rénovée et finie. Le propriétaire a approuvé les plans de construction, qui peuvent être consultés via www.allur.be. Ceux-ci peuvent également être achetés. Plus d'informations via le bureau. Il s'agit d'un terrain en forme de L de 935 m², avec un agréable jardin spacieux qui donne sur un chemin de promenade. Les services publics ne sont actuellement pas disponibles. Grand espace de stationnement à la maison. Situé au calme avec d'excellentes connexions aux transports en commun (train, bus), sentiers de randonnée, routes d'accès et autres installations.


Votre contact

Cornelis Erik 02 486 26 26
contact

Détails de la propriété

Financier

Prix
€ 199.000,00
Disponible
à l'acte
Revenu cadastral
€ 284,00

Localisation géographique

Environnement
Zone d'habitation, calme

Bâtiment

Surface habitable
105,00 m²
Façades
3
Année de construction
1899
État
À rénover
Type de toit
Toit en selle

Terrain

Superficie terrain
935,00 m²
Jardin
Oui

énergie

Fenêtres
Bois

Information urbanistique

Permis de bâtir
Oui
Affectation
Zone d'habitat
Intimation en justice
Non
Droit de préemption
Non
Permis de lotir
Non
G-score
B
P-score
D
Jugement en cours
Non

Plus d'info pour cette propriété

Merci pour votre message, nous vous contacterons dès que possible.
Il y avait un problème lors de l'envoi du formulaire, s'il vous plaît essayer à nouveau.
(*) Veuillez remplir les champs obligatoires.